Office For Sale Horsham
PROPERTY ID: 140155
PROPERTY TYPE
Office
STATUS
Available
SIZE
626 sq.ft
Key Features
Property Details
The Graylands Estate is situated some 1.5 miles north of Horsham town centre, approached off Langhurstwood Road. The property is in an enviable position slightly elevated and overlooking Horsham with Gatwick Airport some 9 miles to the north east. Regular rail services run from Horsham to Victoria and London Bridge. In addition, Warnham Station providing services to Horsham, London and Dorking is less than 1 mile to the south. Graylands comprises a multi tenanted facility, approaching some 80,000 sq ft.
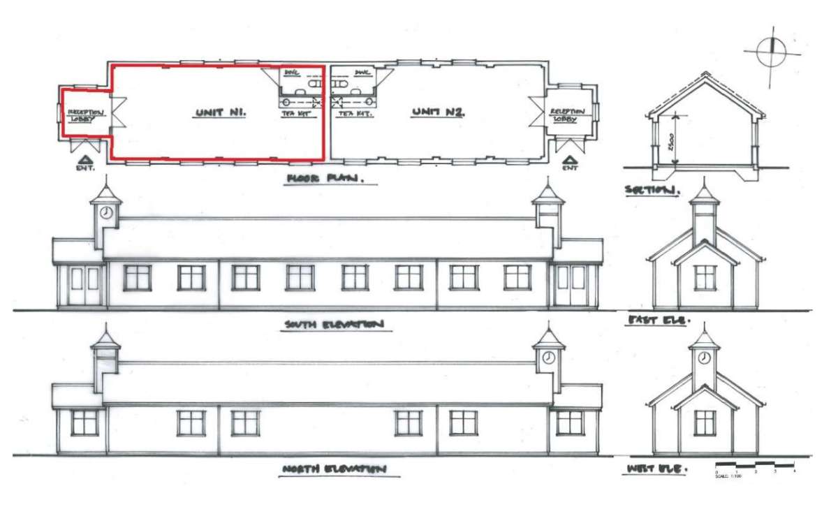
Unit 25 Comprises A Self-contained Space With A Kitchenette And Wc Accommodation. Located To The Front Of The Estate, 25 Is Semi-detached With Open Plan Accommodation And Parking Outside The Unit.  The Unit Is Set Within The Graylands Estate Which Is A Restored Collection Of Offices And Workshops.  There Is A Café On Site And Generous Parking Provisions.
The Graylands Estate Is Situated Some 1.5 Miles North Of Horsham Town Centre, Approached Off Langhurstwood Road.  The Property Is In An Enviable Position Slightly Elevated And Overlooking Horsham With Gatwick Airport Some 9 Miles To The North East.  Regular Rail Services Run From Horsham To Victoria And London Bridge.  In Addition, Warnham Station Providing Services To Horsham, London And Dorking Is Less Than 1 Mile To The South. Graylands Comprises A Multi Tenanted Facility, Approaching Some 80,000 Sq Ft.

















































































































